2700 Singleton Creek Road, Liberty Hill SC

  • 3 Bed
  • 3 Bath
  • 2032 ft2
  • 0.9 ac

For Sale $750,000

Call agent

Remarks:

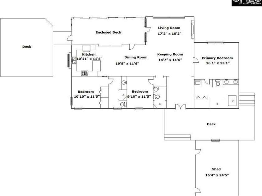
Welcome to this stunning 3-bedroom, 3-bathroom lakefront home. Living areas and bedroom have brand new hardwood flooring, bathrooms and kitchen are tiled.The focal point includes a huge 75in TV & fireplace.The primary bathroom is a true spa like experience with custom tiled shower and soaking tub. Each bedroom has access to its own dedicated full sized bathroom with beautifully tiled showers.The kitchen is a chef's dream, with stunning beams, stone backsplash, and featuring top-of-the-line stainless steel appliances and elegant porcelain countertops, perfect for both everyday meals and entertaining guests.The deck off the sunroom is the perfect place to grill and entertain friends and family as you come in off the lake.No expense has been spared in creating this extraordinary home, which also includes a built-in Generac generator. The property includes upper and lower yard irrigation and a spacious, powered workshop (nearly 400 sq. ft.) offers endless possibilities for storage.

General Information:

List Price: $750,000
Status: For Sale
Bedrooms: 3
Type: Single Family Residence
Approx Sq. Ft.: 2032 sqft
Parking: Detached Carport
MLS Number: CAR4221959
Subdivision: None
Style: Cabin
Bathrooms: 3
Year Built: 1983
Sewer Type: Septic Installed

Assigned Schools:

Elementary: Baron Dekalb
Middle: North Central
High: North Central

Price & Sales History

Date Event Price $/SQFT
04-29-2025 Listed $750,000 $370

Nearby Schools

These schools are only nearby your property search, you must confirm exact assigned schools.

School Name Distance Grades Rating
No schools found

Source is provided by local and state governments and municipalities and is subject to change without notice, and is not guaranteed to be up to date or accurate.

Properties For Sale Nearby

Mileage is an estimation calculated from the property results address of your search. Driving time will vary from location to location.

Street Address Distance Status List Price Days on Market
2700 Singleton Creek Road, Liberty Hill SC 0 mi $750,000 days
2308 White Heron Road, Liberty Hill SC 0.4 mi $600,000 days
2592 Singleton Creek Road, Liberty Hill SC 0.5 mi $1,019,000 days
2248 White Heron Road, Liberty Hill SC 0.6 mi $659,000 days
2236 White Heron Road, Liberty Hill SC 0.7 mi $387,000 days
2429 Singleton Point, Liberty Hill SC 1 mi $1,400,000 days
1 to 6 of 9 Result

Sold Properties Nearby

Mileage is an estimation calculated from the property results address of your search. Driving time will vary from location to location.

Street Address Distance Property Type Sold Price Property Details

Commute Distance & Time

Powered by Google Maps

Mortgage Calculator

  • $
  • %
  • %
  • Down Payment Amount $990,000
    Mortgage Amount $3,960,000
    Monthly Payment (Principal & Interest Only) $19,480

    * Expand Calculator (incl. monthly expenses)

    Property Taxes
    $
    H.O.A. / Maintenance
    $
    Property Insurance
    $
    Total Monthly Payment $20,941

    Demographic Data For Zip 29074

  • Median Age:
  • Married:
  • Number of Households:
  • Households with Children:








  • Occupancy Types
    Transportation to Work

    Source is provided by local and state governments and municipalities and is subject to change without notice, and is not guaranteed to be up to date or accurate.

    Request More Information

    Comments Section

    Property Listing Information

    A Courtesy Listing Provided By Home & Land Pros LLC

    2700 Singleton Creek Road, Liberty Hill SC is a 2032 ft2 on a 0.910 acres Appraisal lot. This is for $750,000. This has 3 bedrooms, 3 baths, and was built in 1983.

    Based on information submitted to the MLS GRID as of 2025-04-29 10:45:13 EST. All data is obtained from various sources and may not have been verified by broker or MLS GRID. Supplied Open House Information is subject to change without notice. All information should be independently reviewed and verified for accuracy. Properties may or may not be listed by the office/agent presenting the information. Some IDX listings have been excluded from this website. Properties displayed may be listed or sold by various participants in the MLS. Click here for more information

    Neither Yates Realty nor any listing broker shall be responsible for any typographical errors, misinformation, or misprints, and they shall be held totally harmless from any damages arising from reliance upon this data. This data is provided exclusively for consumers' personal, non-commercial use and may not be used for any purpose other than to identify prospective properties they may be interested in purchasing.