146 Astor Street, Troutman NC

  • 4 Bed
  • 3 Bath
  • 775 ft2
  • 0.1 ac

For Sale $377,249

Call agent

Remarks:

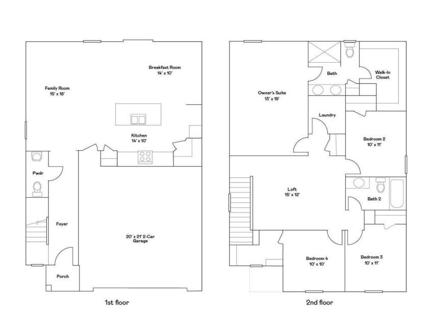
This new two-story Crane floorplan was designed for optimum comfort and convenience. The first floor features an open family room that flows seamlessly to the kitchen and breakfast room, plus a two-car garage. The second floor hosts a versatile loft that adds shared living space and four restful bedrooms including a large owner’s suite. Plus, our signature Everything's Included program means you will get quartz or granite kitchen countertops, stainless steel appliances, luxury vinyl plank flooring, and so much more at no extra cost! Winecoff Village is conveniently located in Troutman, offering excellent outdoor recreation at nearby Lake Norman State Park. Residents can enjoy a charming downtown area filled with ample shopping and dining options. Winecoff Village is approximately a 40-minute drive to Uptown Charlotte, thanks to close proximity to I-77.

Interior Features:

Attic Stairs Pulldown, Open Floorplan, Pantry, Walk-In Closet(s)

General Information:

List Price: $377,249
Status: For Sale
Bedrooms: 4
Type: Single Family Residence
Approx Sq. Ft.: 775 sqft
Parking: Driveway, Attached Garage, Garage Faces Front
MLS Number: CAR4267188
Subdivision: Winecoff Village
Style: Traditional
Bathrooms: 3
Year Built: 2024
Sewer Type: Public Sewer

Assigned Schools:

Elementary: Troutman
Middle: Troutman
High: South Iredell

Price & Sales History

Date Event Price $/SQFT
06-27-2025 Listed $377,249 $487

Nearby Schools

These schools are only nearby your property search, you must confirm exact assigned schools.

School Name Distance Grades Rating
Troutman Elementary School 0 miles PK-05 5
Third Creek Elementary School 3 miles PK-05 2
Success Charter School 4 miles KG-06 1
Shepherd Elementary School 6 miles PK-05 8
American Renaissance School 6 miles KG-06 9
N B Mills Elementary School 6 miles PK-05 1

Source is provided by local and state governments and municipalities and is subject to change without notice, and is not guaranteed to be up to date or accurate.

Properties For Sale Nearby

Mileage is an estimation calculated from the property results address of your search. Driving time will vary from location to location.

Street Address Distance Status List Price Days on Market
146 Astor Street, Troutman NC 0 mi $377,249 days
144 Astor Street, Troutman NC 0 mi $329,999 days
149 Astor Street, Troutman NC 0 mi $339,999 days
151 Astor Street, Troutman NC 0 mi $368,999 days
143 Arden Court, Troutman NC 0 mi $326,999 days
134 Dorian Place, Troutman NC 0 mi $354,999 days
1 to 6 of 83 Result

Sold Properties Nearby

Mileage is an estimation calculated from the property results address of your search. Driving time will vary from location to location.

Street Address Distance Property Type Sold Price Property Details

Commute Distance & Time

Powered by Google Maps

Mortgage Calculator

  • $
  • %
  • %
  • Down Payment Amount $990,000
    Mortgage Amount $3,960,000
    Monthly Payment (Principal & Interest Only) $19,480

    * Expand Calculator (incl. monthly expenses)

    Property Taxes
    $
    H.O.A. / Maintenance
    $
    Property Insurance
    $
    Total Monthly Payment $20,941

    Demographic Data For Zip 28166

  • Median Age:
  • Married:
  • Number of Households:
  • Households with Children:








  • Occupancy Types
    Transportation to Work

    Source is provided by local and state governments and municipalities and is subject to change without notice, and is not guaranteed to be up to date or accurate.

    Request More Information

    Comments Section

    Property Listing Information

    A Courtesy Listing Provided By Lennar Sales Corp

    146 Astor Street, Troutman NC is a 775 ft2 on a 0.140 acres Appraisal lot. This is for $377,249. This has 4 bedrooms, 3 baths, and was built in 2024.

    Based on information submitted to the MLS GRID as of 2025-06-27 09:06:43 EST. All data is obtained from various sources and may not have been verified by broker or MLS GRID. Supplied Open House Information is subject to change without notice. All information should be independently reviewed and verified for accuracy. Properties may or may not be listed by the office/agent presenting the information. Some IDX listings have been excluded from this website. Properties displayed may be listed or sold by various participants in the MLS. Click here for more information

    Neither Yates Realty nor any listing broker shall be responsible for any typographical errors, misinformation, or misprints, and they shall be held totally harmless from any damages arising from reliance upon this data. This data is provided exclusively for consumers' personal, non-commercial use and may not be used for any purpose other than to identify prospective properties they may be interested in purchasing.